La conception d'une salle de bain moderne ou rénovée soulève souvent la question de l'esthétique et de la fonctionnalité des installations de plomberie. Parmi les éléments les plus visibles, les tuyauteries d'alimentation en eau, particulièrement celles en cuivre, peuvent poser un défi lorsqu'elles sont apparentes. Cet article explore les raisons pour lesquelles le cuivre est encore utilisé, les normes à respecter, et surtout, les diverses solutions pour dissimuler ou intégrer élégamment ces tuyaux dans une douche.
Comprendre l'Alimentation en Eau de Votre Salle de Bains
L'installation de plomberie d'une salle de bains est un réseau complexe qui commence bien avant les équipements sanitaires eux-mêmes. Depuis le compteur d'eau de votre domicile, l'eau suit un parcours précis avant d'atteindre votre douche, votre lavabo ou votre baignoire.
Du Compteur à la Salle de Bains : Le Parcours de l'Eau
Après le compteur, un clapet anti-retour joue un rôle crucial en isolant votre réseau privé du réseau public. Cette mesure de sécurité empêche toute contamination potentielle de l'eau potable publique par votre installation domestique en cas de dépression importante sur le réseau public. Vient ensuite un éventuel régulateur de pression, qui permet d'adapter la pression de l'eau aux besoins spécifiques de votre logement.
La distribution interne de l'eau est ensuite gérée par une nourrice, qui divise le flux en plusieurs circuits indépendants pour l'eau chaude et l'eau froide. Chaque canalisation est équipée d'un robinet d'arrêt, un élément indispensable pour permettre une coupure manuelle de l'alimentation en eau, que ce soit pour des travaux de maintenance, de réparation ou en cas d'urgence.

Les Arrivées d'Eau Spécifiques à la Salle de Bains
Les canalisations d'eau chaude sanitaire (ECS) et d'eau froide desservent tous les appareils sanitaires de la salle de bains. Cela inclut les lavabos, les douches, les baignoires, et potentiellement les WC, qu'ils soient classiques ou broyeurs.
Historiquement, le cuivre a été le matériau de prédilection pour les tuyauteries de plomberie. Bien que des matériaux plus modernes comme le polyéthylène réticulé (PER) et le multicouche aient gagné en popularité, le cuivre conserve certains avantages qui justifient son utilisation continue.
Le Cuivre : Un Matériau Durable et Fiable
Le cuivre est apprécié pour sa durabilité exceptionnelle, sa résistance à la corrosion et sa capacité à supporter des températures et des pressions élevées. Il est également résistant aux rayons ultraviolets (UV), ce qui lui permet d'être installé en apparent sans dégradation significative. Les tuyauteries en cuivre sont généralement brasées au chalumeau, une technique qui, une fois maîtrisée, assure des raccords solides et étanches. Pour les bricoleurs moins expérimentés, il est possible de tester la solidité des soudures en mettant provisoirement la tuyauterie sous pression dans un espace approprié, comme un garage.
Les Alternatives Modernes : PER et Multicouche
Le PER, reconnaissable à ses tubes de couleurs distinctes (bleu pour l'eau froide, rouge pour l'eau chaude), est un matériau flexible et facile à installer. Cependant, il est sensible aux UV et doit impérativement être dissimulé dans des coffrages ou derrière des cloisons. Le multicouche, quant à lui, se distingue par sa couleur blanche et combine la flexibilité du polyéthylène avec la résistance du métal. Il ne craint pas les UV et peut, tout comme le cuivre, être installé en apparent.
Diamètres des Tuyaux : Une Question de Débit
Le diamètre des tuyaux d'arrivée d'eau est déterminé par l'équipement qu'ils desservent. Par exemple, une baignoire ou une douche nécessite généralement un tuyau de diamètre extérieur de 16 mm pour assurer un débit suffisant. Pour des appareils comme un lavabo, un WC, une vasque ou un lave-linge, un diamètre extérieur de 12 mm est souvent suffisant.
Dans le cas de la rénovation, prolonger des tuyauteries en cuivre existantes par des tubes en PER ou multicouche est tout à fait réalisable grâce à des raccords spécifiques à bague, garantissant l'étanchéité entre les différents matériaux.
Le Défi des Tuyauteries Apparentes en Cuivre dans la Douche
L'un des problèmes récurrents lors de la rénovation ou de la création d'une salle de bain, et particulièrement d'une douche, concerne l'esthétique des tuyauteries en cuivre qui restent apparentes. Que ce soit dans un vieil appartement où les installations n'ont pas évolué, ou dans le cadre d'une nouvelle installation où l'encastrement n'a pas été prévu initialement, ces tuyaux peuvent nuire à l'harmonie visuelle de la pièce.
Problématiques Courantes et Questions Associées
Les forums de bricolage et de plomberie regorgent de questions similaires à celles soulevées par les utilisateurs :
- Problèmes d'eau découverts après dégâts chez les voisins : Cela souligne l'importance d'une installation fiable et bien entretenue pour éviter les fuites et les infiltrations.
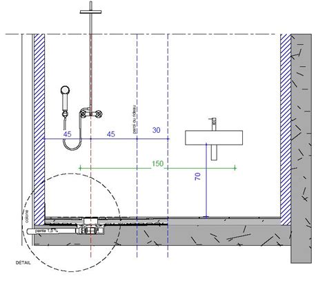
- Normes à respecter : Il existe des normes concernant les diamètres des tuyaux, les distances entre les arrivées d'eau, et les techniques d'installation pour garantir la sécurité et la fonctionnalité. Par exemple, l'écartement standard des deux arrivées d'eau dans une douche est généralement de 150 mm, bien que des variations puissent exister.
- Cacher les tuyaux dans une cuisine ou une salle de bain : Des utilisateurs locataires ou propriétaires cherchent des solutions pour dissimuler des tuyauteries imposantes, notamment celles raccordées à un ballon d'eau chaude, ou pour changer des tuyaux vieillissants et inesthétiques.
- Rallonger des tuyauteries : Pour adapter une installation existante à un nouvel agencement (par exemple, déplacer un évier), il est souvent nécessaire de rallonger les tuyaux d'arrivée d'eau.
- Montage de mitigeurs : Les novices peuvent rencontrer des difficultés pour démonter ou installer des mitigeurs, ce qui implique une compréhension des raccords et des outils nécessaires.
- Placement de colonnes de douche : L'écartement des arrivées d'eau peut ne pas correspondre aux dimensions d'une nouvelle colonne de douche, nécessitant alors de trouver des solutions pour masquer ces écarts.

L'Aspect Esthétique des Tuyaux Apparents
Dans les appartements anciens, il n'est pas rare de découvrir des tuyauteries en cuivre qui courent le long des murs, parfois à une hauteur significative du sol, comme dans le cas d'un appartement où les tuyaux apparents se situaient à environ 30 cm du sol. Ces installations, bien que fonctionnelles, peuvent être perçues comme disgracieuses, surtout lorsque l'on souhaite moderniser sa salle de bain.
Le défi devient alors de concilier la nécessité d'une installation de plomberie fonctionnelle avec l'envie d'un espace esthétiquement agréable. Dans certains cas, des solutions intermédiaires sont trouvées, comme la réduction de la hauteur des tuyaux apparents (par exemple, de 30 cm à 24 cm), mais cela peut nécessiter la création de marches ou de paliers pour masquer la différence, soulevant à leur tour des questions de conception (nombre et hauteur des marches).
Solutions pour Dissimuler ou Intégrer les Tuyauteries Apparentes en Cuivre
Heureusement, il existe une multitude de solutions pour gérer les tuyauteries apparentes en cuivre, allant de l'intégration discrète à la transformation créative. Le choix de la solution la plus appropriée dépendra de votre budget, de vos compétences en bricolage, de l'espace disponible et de l'esthétique générale souhaitée.
1. Les Coffrages Traditionnels
La méthode la plus courante pour dissimuler les tuyauteries apparentes est la création de coffrages. Ces structures permettent de recouvrir complètement les tuyaux, créant ainsi une surface lisse et uniforme.
- Matériaux : Les coffrages peuvent être réalisés en plaques de plâtre hydrofuge (adaptées aux pièces humides), en contreplaqué, ou même en carreaux de céramique pour une finition plus durable et esthétique.
- Conception : Le coffrage peut être conçu pour épouser la forme des tuyaux, ou pour créer une niche décorative. Il est essentiel de prévoir un accès facile aux robinets d'arrêt et aux raccords pour d'éventuelles interventions futures.
- Avantages : Solution efficace pour un rendu propre et moderne. Permet de créer des étagères intégrées ou des niches pour les produits de beauté.
- Inconvénients : Peut réduire légèrement l'espace de la salle de bain. Nécessite des compétences en menuiserie ou en plaquisterie.

2. L'Encapsulation dans le Mur (Si Possible)
Dans le cadre d'une rénovation plus conséquente, il est parfois possible d'encastrer les tuyauteries directement dans le mur.
- Procédure : Cela implique de réaliser une saignée dans le mur pour y loger les tuyaux, puis de reboucher et de recouvrir la zone avec du carrelage ou un autre revêtement mural.
- Avantages : Solution la plus esthétique, car les tuyaux deviennent totalement invisibles.
- Inconvénients : Travaux plus importants et coûteux. Nécessite l'intervention d'un professionnel pour s'assurer de la bonne étanchéité et de la conformité aux normes. Risque de dégrader la structure du mur si mal réalisé.
3. Les Goulottes et Gaines Techniques
Des goulottes spécifiques pour la plomberie existent et peuvent être utilisées pour recouvrir les tuyaux apparents.
- Matériaux : Généralement en PVC ou en aluminium, ces goulottes sont conçues pour être discrètes et faciles à installer.
- Avantages : Installation plus rapide qu'un coffrage traditionnel. Permet de protéger les tuyaux.
- Inconvénients : L'aspect peut rester technique et moins esthétique qu'un coffrage bien fini.
4. L'Intégration Décorative
Plutôt que de simplement cacher les tuyaux, pourquoi ne pas les intégrer comme un élément de design ?
- Peinture : Les tuyaux en cuivre peuvent être peints avec une peinture spéciale pour métal, dans une couleur qui s'harmonise avec le reste de la décoration (blanc, gris, noir, ou même une couleur vive pour un contraste audacieux).
- Habillage : Il est possible d'habiller les tuyaux avec des matériaux comme du bois (traité pour résister à l'humidité) ou même des cordages décoratifs pour un style plus rustique ou maritime.
- Mise en Valeur : Dans un style industriel ou loft, les tuyauteries apparentes en cuivre peuvent être assumées et même mises en valeur, en les laissant brutes ou en les peignant dans une couleur métallique contrastante.
Cacher des tuyaux
5. Le Choix de Matériaux Alternatifs lors de la Rénovation
Si vous avez la possibilité de modifier l'ensemble de la tuyauterie, optez dès le départ pour des matériaux qui se prêtent mieux à l'encastrement ou à une intégration plus discrète. Le PER et le multicouche, bien que nécessitant d'être protégés des UV, sont plus flexibles et plus faciles à faire passer dans des cloisons ou des faux plafonds.
Précautions et Normes à Respecter
Indépendamment de la solution choisie pour gérer les tuyauteries apparentes, il est primordial de respecter certaines précautions et normes pour garantir la sécurité et la longévité de votre installation.
- Accès aux Équipements : Assurez-vous que les robinets d'arrêt, les raccords et les vannes restent accessibles pour toute intervention future. Un coffrage mal conçu peut rendre ces opérations très compliquées, voire impossibles sans destruction.
- Ventilation : Si vous créez un coffrage fermé, prévoyez une ventilation adéquate pour éviter l'accumulation d'humidité et le développement de moisissures, surtout autour des tuyaux d'eau chaude.
- Isolation : Les tuyaux d'eau chaude peuvent être isolés avec des manchons en mousse pour réduire les déperditions de chaleur et éviter de chauffer inutilement l'espace environnant. L'isolation peut également aider à prévenir la condensation sur les tuyaux d'eau froide.
- Diamètres et Débits : Vérifiez que les diamètres des tuyaux sont adaptés au débit requis par les équipements sanitaires (douche, robinetterie, etc.) pour garantir un confort d'utilisation optimal. Un diamètre trop faible peut entraîner une pression d'eau insuffisante.
- Étanchéité : L'étanchéité des raccords est cruciale pour éviter les fuites, qui peuvent causer des dégâts considérables, comme l'ont montré certains témoignages de problèmes survenus chez des voisins.
- Conformité aux Normes : Renseignez-vous sur les normes locales en vigueur concernant les installations de plomberie. L'intervention d'un professionnel est souvent recommandée pour les travaux importants afin de garantir la conformité et la sécurité de l'installation.
La Création d'une Nouvelle Salle de Bains : Repenser l'Espace
Lorsque l'on envisage de créer une nouvelle salle de bain, que ce soit dans un espace existant ou une extension, c'est l'occasion idéale de planifier l'installation de plomberie dès le départ. Il est alors plus simple d'intégrer les tuyauteries dans les murs ou de prévoir des passages discrets.
Gestion des Évacuations d'Eau Usée
En parallèle des arrivées d'eau, la gestion des évacuations d'eaux usées est tout aussi importante. Les diamètres des canalisations d'évacuation doivent être adaptés à chaque appareil sanitaire (lavabo, douche, baignoire, WC).
- WC Broyeur : Dans les cas où une évacuation de diamètre standard (80 ou 100 mm) n'est pas disponible, un WC broyeur peut être une solution. Il ne nécessite qu'une évacuation de petit diamètre (32 mm) pour les eaux vannes.
- Pompes de Relevage : Pour aménager une salle de bain dans un endroit éloigné des colonnes d'évacuation principales, les pompes de relevage (comme la gamme Sanipompe de SFA) permettent de rejeter les eaux usées vers une évacuation existante, même si celle-ci est située en hauteur. Une canalisation de 32 mm suffit alors pour raccorder une salle de bain complète.
L'Aménagement d'une Douche à l'Italienne
La création d'une douche à l'italienne, particulièrement dans un appartement ancien avec des installations visibles, peut présenter des défis. Les tuyaux apparents et leur hauteur peuvent nécessiter des adaptations, comme la mise en place de marches pour accéder à la douche. La conception de ces marches doit être pensée pour être à la fois fonctionnelle et esthétique, en veillant à une hauteur et une profondeur confortables.

En conclusion, la gestion des tuyauteries apparentes en cuivre dans une douche est un aspect important de la rénovation ou de la création d'une salle de bain. Qu'il s'agisse de les dissimuler derrière des coffrages, de les intégrer de manière créative ou de choisir des matériaux plus modernes lors d'une refonte complète, de nombreuses solutions existent. L'essentiel est de combiner fonctionnalité, sécurité et esthétique, tout en respectant les normes en vigueur pour un résultat durable et satisfaisant.
tags: #douche #avec #tuyauterie #apparente #cuivre
